Dieses freistehende Einfamilienhaus vereint auf eindrucksvolle Weise den unverwechselbaren Charakter eines historischen Fachwerkgebäudes mit den Annehmlichkeiten zeitgemäßen Wohnens. Ursprünglich im Jahr 1806 als Scheune erbaut, wurde das unter Denkmalschutz stehende Einzelkulturdenkmal im Jahr 1976 mit viel Liebe zum Detail zu einem wohnlichen Zuhause umgebaut. Bis heute leistet sein Erhalt einen wertvollen Beitrag zur Bewahrung des kulturellen Erbes der Region.
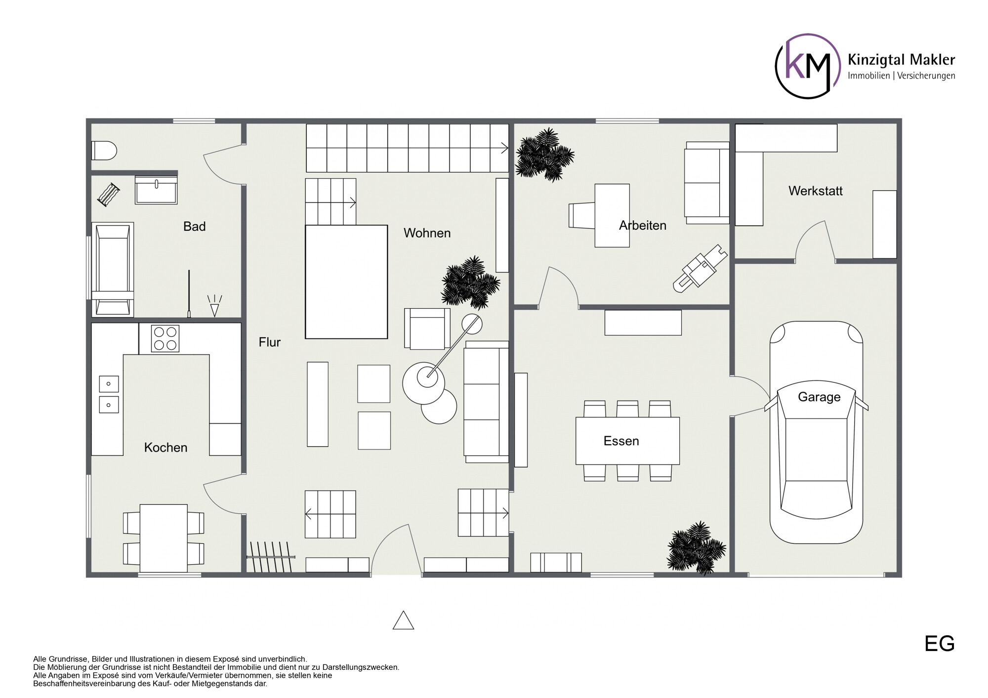
Bereits beim Betreten des Hauses wird deutlich, dass es sich um ein ganz besonderes Zuhause handelt. Die Eingangstür ist ein imposantes, original erhaltenes Scheunentor, welches ein architektonisches Highlight darstellt und die Geschichte des Hauses auf eindrucksvolle Weise lebendig werden lässt. Hinter dieser markanten Tür öffnet sich ein großzügiger Wohnbereich in Split-Level-Bauweise, der mit einer offenen Raumgestaltung, viel Tageslicht und einem Kaminanschluss eine einladende Wohnatmosphäre schafft. Hier verbinden sich historische Bausubstanz und moderne Großzügigkeit zu einem harmonischen Ganzen – ideal für Familien, die nach einem charaktervollen Zuhause suchen, ebenso wie für Liebhaber*innen historischer Baukunst.
Die durchdachte Raumstruktur auf mehreren Ebenen eröffnet vielseitige Nutzungsmöglichkeiten: Ein separates Esszimmer, ein Arbeitszimmer, Kinderzimmer sowie ein offener Bereich im Dachgeschoss bieten ausreichend Raum für Familie, Hobby oder kreative Projekte. Eine gemütliche Leseecke, Kellerräume und praktische Nebenräume ergänzen das Raumangebot. Von den oberen Etagen gelangen Sie auf eine herrlich große Terrasse und eine Balkoneinheit – ideal, um den Tag entspannt im Freien ausklingen zu lassen. Eine innenliegende Garage mit direktem Zugang zum Haus sowie eine anliegende Hobbywerkstatt bieten zusätzlichen Komfort und Platz für handwerkliche Tätigkeiten oder die Aufbewahrung von Freizeitgeräten.
Über die Jahre hinweg wurde kontinuierlich Modernisierungsmaßnahmen durchgeführt – stets mit dem Anspruch, die historische Substanz zu bewahren und gleichzeitig modernen Wohnkomfort zu gewährleisten. So wurde unter anderem das Masterbad im Jahr 2010 erneuert. Sämtliche Fenster sind als zweifach verglaste Holzrahmenfenster ausgeführt. Das gedämmte Dach- und Kellergeschoss sowie die 2014 installierte Gas-Zentralheizung tragen zur energetischen Optimierung bei.
Ob als stilvolles Familienheim, als Kombination aus Wohnen und Arbeiten oder als besonderer Rückzugsort mit Geschichte – dieses Fachwerkhaus ist ein Unikat. Es bietet die seltene Gelegenheit, in einem Gebäude mit Seele und kulturellem Wert zu leben, ohne auf modernen Komfort verzichten zu müssen. Eine Einladung an alle, die das Besondere suchen.
Schauen Sie sich nun zuerst unsere virtuelle 3D-360° Immobilientour an, und erleben Sie Ihr neues Zuhause, als wären Sie selbst schon vor Ort. Bei Gefallen vereinbaren Sie einen persönlichen Beratungstermin mit unserem Team.
Tipp Hessengeld: Ihre Chance auf Förderung
Wussten Sie schon? Nutzen Sie die Chance auf Hessengeld! Die Förderung beträgt bis zu 20.000 Euro für Erstkäufer in Hessen, plus 5.000 Euro für jedes Kind unter 18 Jahren, das mit einzieht. Diese Unterstützung hilft Ihnen, die Grunderwerbsteuer zu reduzieren und macht den Traum vom Eigenheim noch greifbarer.
Wer kann das Hessengeld beantragen?
Voraussetzungen:
– Kauf der ersten selbst genutzten Immobilie
– Die Immobilie liegt in Hessen
– Grunderwerbsteuer wird fällig
ZENTRAL, CHARMANT, ZUKUNFTSSICHER – Stadtvilla als Wohntraum oder Investition
ImmoNr: 251011
Haus
Mehrfamilienhaus
Kauf
63607 Wächtersbach
Anzahl Zimmer: 9
Grundstücksgröße: ca. 936 m²
Wohnfläche: ca. 196 m²


































