Bitte haben Sie Verständnis, dass wir nur Anfragen mit Angabe der vollständigen Kontaktdaten (Name, Vorname, Adresse, Telefon od. Email) bearbeiten und Termine vereinbaren können. – Vielen Dank –
Lieben Sie die würzige Landluft, das satte Grün der Wiesen, die freie Sicht auf eine liebliche Landschaft und noch der Himmel über Ihnen? Sie haben eine Familie, Sie wollen mit Ihren Kindern raus aus der teuren Stadt in eine gesunde Umgebung – auf Tuchfühlung mit der Natur? Dann ist das Haus genau richtig! Sie kaufen ein solides gebautes massives klassisches Einfamilienhaus mit ausgebautem Dachgeschoss und einem Teilkeller, sowie einer modernen im Haus befindlichen Doppelgarage. Das Haus ist ausreichend groß, hat ca.141 Quadratmeter Wohnfläche auf fünf Zimmer verteilt.
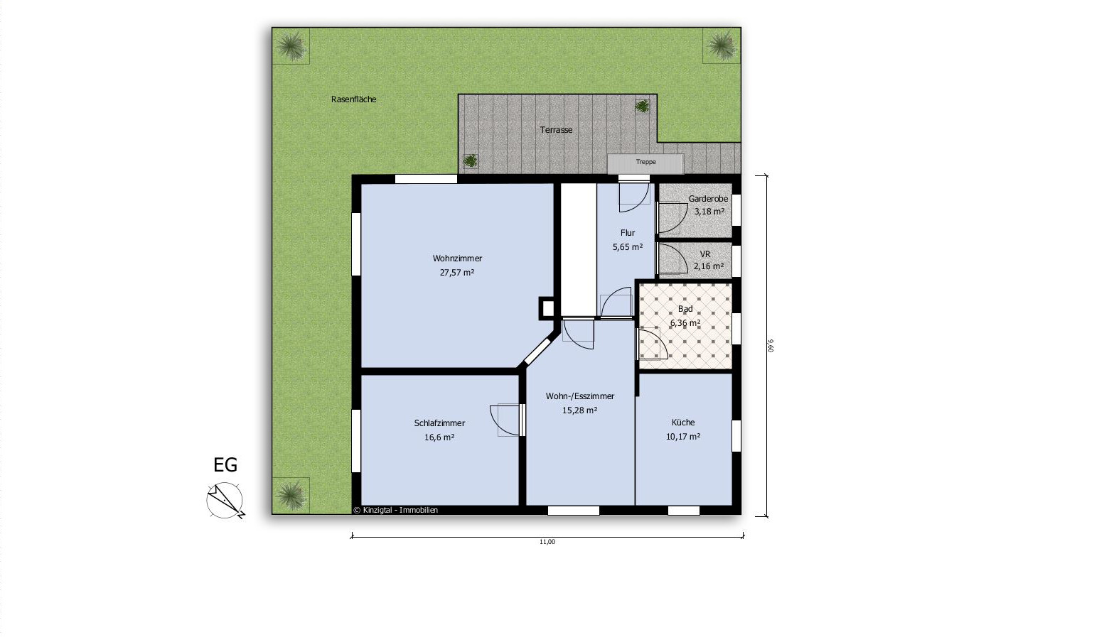
Das Erdgeschoss ist der Mittelpunkt des Hauses. Hell und freundlich vermittelt es eine Großzügigkeit, die Sie von außen nicht erahnen. Das Wohnzimmer bietet üppig Platz für ausladende Möbel, das zweite Zimmer ist gut proportioniert und eignet sich mit dem großen großartigen Einbau-Schwebetüren-Schrank in Glanzlackoptik, als Schlafzimmer. Neben einem Tageslicht-Bad mit WC, Badewanne und Dusche, sowie dem Flurbereich mit Vorratsraum od. Garderobe, verstärkt ein offener Wohn- und Essbereich nebst moderner Einbauküche die Großzügigkeit der Räumlichkeiten. Hier werden Sie sich wohlfühlen!
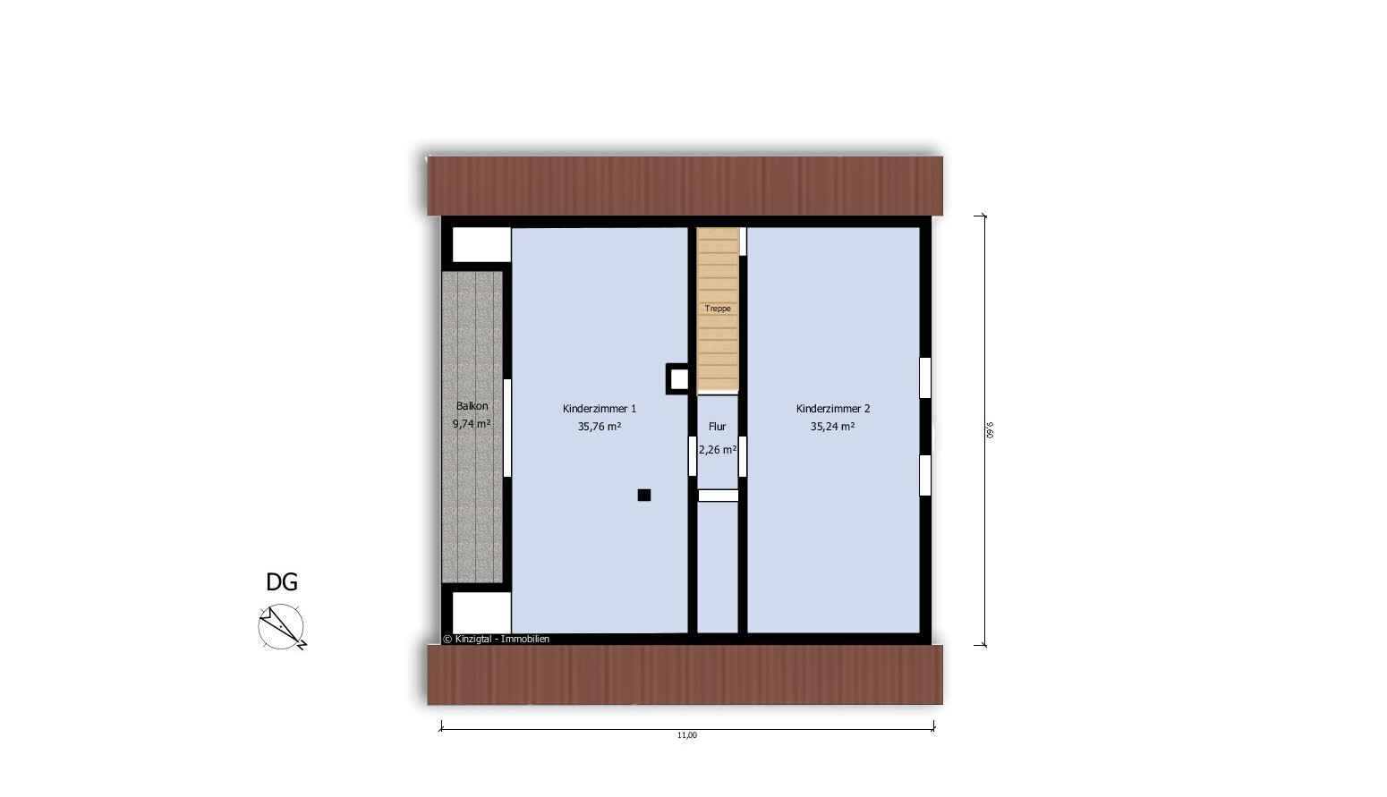
Das Dachgeschoss (leichte Schrägen): ebenso hell wie das gesamte Haus, mit zwei gleichwertig großen Wohnräumen bietet es genug Platz zum Schlafen und Spielen für Ihre Kleinsten. Perfekt für eine Familie mit zwei Kindern.
Noch mehr Platz haben Sie im Untergeschoss. Hier gibt es neben den Heizungs- und Wirtschaftsräumen auch einen Hobbykeller und als Highlight eine moderne Sektionaltor-Doppelgarage mit Elektroantrieb, sowie zentral alle Hausanschlüsse. Zur Doppelgarage stehen Ihnen noch weitere 3-4 neu gepflasterte Pkw-Außenstellplätze zur Verfügung.
Der kuschelige Garten mit überdachter Südterrasse, lädt zum Verweilen ein. Hier entspannen Sie sich bei Wein, Musik und einem guten Buch, und Ihre Kinder können hier in Ruhe spielen. Ist das nicht herrlich?
Wir werden Ihnen nicht verschweigen, dass am Haus noch die eine oder andere kleine handwerkliche Arbeit erfordert: Minimale Ausbesserungsarbeiten an der Hausfassade (Neuanstrich – Sockelputz ca. 3,00 x 0,40 m), aufgrund Abtragung des Erdreiches und Neubepflasterung stehen derzeit noch offen. Des Weiteren wurde die Fassade zur Straßenseite durch nistende Vögel zum Teil mit Kot verschmutzt, welche das Gesamtbild (Straßenseite) des schönen Hauses ein klein wenig trübt. Hier Bedarf es lediglich einer Reinigung mit einem Dampfstrahler.
Was sollen wir Ihnen erzählen, was Sie auf den Fotos oder 360° Rundgang nicht selbst schon sehen: Schauen Sie sich nun zuerst unsere virtuelle 3D-360° Immobilientour an, und erleben Sie Ihr neues Zuhause als wären Sie selbst schon vor Ort. Bei Gefallen vereinbaren Sie einen persönlichen Beratungstermin mit unserem Verkaufsteam.
Wir laden Sie mit Ihren Kindern ein, das Einfamilienhaus kennenzulernen und sich mit uns die ersten Gedanken für eine individuelle Wohngestaltung zu machen.
Technische Angaben
- ImmoNr
- 191072
Kategorie
- Objektart
- Haus
- Objekttyp
- Einfamilienhaus
- Nutzungsart
- Wohnen
- Vermarktungsart
- Kauf
Geografische Angaben
- Ort
- Birstein
- Land
- Deutschland
Flächen
- Wohnfläche
- ca. 141 m²
- Nutzfläche
- ca. 79 m²
- Grundstücksgröße
- ca. 826 m²
- Anzahl Zimmer
- 5
- Anzahl Badezimmer
- 1
- Anzahl Balkone
- 1
- Anzahl Terrassen
- 1
Ausstattung
Balkon
Terrasse
- Befeuerung
- Öl
Preise
- Kaufpreis
- 285.000,00 €
- Außen-Provision
- Käufer: 2,98 % inkl. 19% Verkäufer: 2,98 % inkl. 19%
Gesamtpreiskalkulator
- Kaufpreis
- 285.000 €
- Grunderwerbsteuer
- 17.100 €
- Maklerprovision
- 8.493 €
- Notargebühren *
- 4.275 €
- Grundbucheintrag *
- 1.425 €
- Gesamtkosten
- 316.293 €
* Für die Berechnung der Notar- und Grundbuchkosten wird ein Standardwert von 1,5% bzw. 0,5% verwendet.
Beschreibung
Ausstattung Beschreibung
Das Haus wurde hochsolide massiv gebaut (30er Poroton-Steinen) und ist bestens ausgestattet. Durch sorgsame Behandlung und fortlaufenden Renovierungen befindet es sich in einem gepflegten Zustand. Das trifft auf fast alle Elemente zu, es sei denn, Sie haben bezüglich dem Bad einen anderen Geschmack.
Eine Küche ist eingebaut und mit modernen Geräten ausgestattet, und kann bei Bedarf übernommen werden. Alle Fenster sind doppelverglast mit Dreh- und Kippbeschlägen versehen. Für angenehme Wärme sorgt über die gesamte Wohnfläche eine Fußbodenheizung, welche sich für jeden Raum individuell regulieren lässt. Das Erdgeschoss wurde vollflächig mit hochwertigem Vinyl-Boden ausgestattet, während im Dachgeschoss moderner Laminat-Boden verlegt wurde. Der Balkon (Süd-Ost) kann über eines der Kinderzimmer im Dachgeschoss betreten werden.
Untergeschoss = ca. 79,09 m² (UG)
– Werkstatt
– Hobbyraum
– Heizungsraum
– Dopppelgarage
– Hauswirtschaftsraum
– Flur
– Kellerraum
– Hausverteilung (Strom, Telefon)
Erdgeschoss, ca. 89,49 m² (EG)
– Wohnzimmer
– Badezimmer
– Küche, Esszimmer
– Schlafzimmer
– Flur
– Abstellkammer
– Garderobe
– Terrasse
– TV-/Satellitenanschluss
– Fußbodenheizung
– Telefonanschluss
Dachgeschoss, ca. 51,41 m² (DG)
– Kinderzimmer 1
– Kinderzimmer 2
– Abstellkammer
– Balkon
– Spitzboden/Dachboden
– TV-/Satellitenanschluss
– Fußbodenheizung
Besonderes:
– Fußbodenheizung (Wohnfläche)
– Balkon (Süd-Ost)
– Terrasse
– Doppelgarage mit Sektionaltore und elektrischem Antrieb
– Ausgebautes Dachgeschoss
– Großzügiger Garten
– Kompl. Einbauküche (Optional)
– Grundstück einfriedung
– Treppen Ambiente – Beleuchtung
Eine Küche ist eingebaut und mit modernen Geräten ausgestattet, und kann bei Bedarf übernommen werden. Alle Fenster sind doppelverglast mit Dreh- und Kippbeschlägen versehen. Für angenehme Wärme sorgt über die gesamte Wohnfläche eine Fußbodenheizung, welche sich für jeden Raum individuell regulieren lässt. Das Erdgeschoss wurde vollflächig mit hochwertigem Vinyl-Boden ausgestattet, während im Dachgeschoss moderner Laminat-Boden verlegt wurde. Der Balkon (Süd-Ost) kann über eines der Kinderzimmer im Dachgeschoss betreten werden.
Untergeschoss = ca. 79,09 m² (UG)
– Werkstatt
– Hobbyraum
– Heizungsraum
– Dopppelgarage
– Hauswirtschaftsraum
– Flur
– Kellerraum
– Hausverteilung (Strom, Telefon)
Erdgeschoss, ca. 89,49 m² (EG)
– Wohnzimmer
– Badezimmer
– Küche, Esszimmer
– Schlafzimmer
– Flur
– Abstellkammer
– Garderobe
– Terrasse
– TV-/Satellitenanschluss
– Fußbodenheizung
– Telefonanschluss
Dachgeschoss, ca. 51,41 m² (DG)
– Kinderzimmer 1
– Kinderzimmer 2
– Abstellkammer
– Balkon
– Spitzboden/Dachboden
– TV-/Satellitenanschluss
– Fußbodenheizung
Besonderes:
– Fußbodenheizung (Wohnfläche)
– Balkon (Süd-Ost)
– Terrasse
– Doppelgarage mit Sektionaltore und elektrischem Antrieb
– Ausgebautes Dachgeschoss
– Großzügiger Garten
– Kompl. Einbauküche (Optional)
– Grundstück einfriedung
– Treppen Ambiente – Beleuchtung
Lage
Das Haus befindet sich in einer ruhigen, geschlossen Wohngebiet. Birstein grenzt im Norden an die Gemeinde Grebenhain (Vogelsbergkreis), im Osten an die Gemeinde Freiensteinau und die Stadt Steinau an der Straße, im Süden an die Stadt Bad Soden – Salmünster und die Gemeinde Brachttal sowie im Westen an die Gemeinde Kefenrod und die Stadt Gedern (beide Wetteraukreis).
Birstein ist an das Autobahnnetz über die Bundesstraße 276, die zur Anschlussstelle Bad Orb-/ Wächtersbach der A 66 führt, angebunden. Die Buslinien MKK-71 und MKK-72 stellen eine stündliche Verbindung über die Orte Wächtersbach – Schlierbach – Neuenschmidten – Birstein dar. In Wächtersbach besteht Anschluss an die Bahnstrecke Frankfurt-Fulda.
Nähere Informationen zur Gemeinde Birstein finden Sie unter:
https://www.birstein.de/
Birstein ist an das Autobahnnetz über die Bundesstraße 276, die zur Anschlussstelle Bad Orb-/ Wächtersbach der A 66 führt, angebunden. Die Buslinien MKK-71 und MKK-72 stellen eine stündliche Verbindung über die Orte Wächtersbach – Schlierbach – Neuenschmidten – Birstein dar. In Wächtersbach besteht Anschluss an die Bahnstrecke Frankfurt-Fulda.
Nähere Informationen zur Gemeinde Birstein finden Sie unter:
https://www.birstein.de/
Sonstige Angaben
Bildhinweis:
Für einen erweiterten Blickwinkel der Raumansicht werden Innenräume mit einem Weitwinkelobjektiv fotografiert. Somit können die Räume größer wirken, als sie real sind.
Haftungsausschluss für inhaltliche Richtigkeit übermittelter Daten: „Der Makler weist darauf hin, dass für die inhaltliche Richtigkeit der übermittelten Daten des oben genannten Objekts nicht gehaftet werden kann, da er diese vom Eigentümer lediglich zur Verfügung gestellt bekommen hat. Unsere Angebote sind freibleibend. Zwischenverkauf oder -Vermietung, Irrtum und Auslassungen bleiben vorbehalten. Bei Zustandekommen eines Kaufvertrages erhält die Kinzigtal-Maklergesellschaft mbH die genannte Maklerhonorar (2,98 % inkl. MwSt.), die nach Abschluss des notariellen Kaufvertrages verdient und fällig ist. Mit dieser Immobilienanfrage erklärt sich der Interessent einverstanden, dass die Kinzigtal-Maklergesellschaft mbH ihn bezüglich dieses und weiterer Angebote telefonisch, schriftlich oder per E-Mail kontaktiert und informiert. Bitte haben Sie Verständnis dafür, dass wir ohne eine Onlineanfrage keine weitere Bearbeitung vornehmen können und beachten Sie bitte, dass Sie Ihre kompletten Kontaktdaten angeben.
Kinzigtal-Immobilien bietet Ihren Kunden-/Interessenten einer der realistischsten und spannesten Erfahrung Ihr neues Zuhause in 3D zu besichtigen. 7 Tage die Woche – 24 Stunden offenes Haus und das bequem von überall. Auch als VR (Virtual Reality) zu erleben, als wären Sie selbst vor Ort.
Wir freuen uns auf Sie!
Für weitere Fragen und Informationen stehen wir Ihnen gerne zur Verfügung.
Ihre Kinzigtal-Maklergesellschaft mbH
Für einen erweiterten Blickwinkel der Raumansicht werden Innenräume mit einem Weitwinkelobjektiv fotografiert. Somit können die Räume größer wirken, als sie real sind.
Haftungsausschluss für inhaltliche Richtigkeit übermittelter Daten: „Der Makler weist darauf hin, dass für die inhaltliche Richtigkeit der übermittelten Daten des oben genannten Objekts nicht gehaftet werden kann, da er diese vom Eigentümer lediglich zur Verfügung gestellt bekommen hat. Unsere Angebote sind freibleibend. Zwischenverkauf oder -Vermietung, Irrtum und Auslassungen bleiben vorbehalten. Bei Zustandekommen eines Kaufvertrages erhält die Kinzigtal-Maklergesellschaft mbH die genannte Maklerhonorar (2,98 % inkl. MwSt.), die nach Abschluss des notariellen Kaufvertrages verdient und fällig ist. Mit dieser Immobilienanfrage erklärt sich der Interessent einverstanden, dass die Kinzigtal-Maklergesellschaft mbH ihn bezüglich dieses und weiterer Angebote telefonisch, schriftlich oder per E-Mail kontaktiert und informiert. Bitte haben Sie Verständnis dafür, dass wir ohne eine Onlineanfrage keine weitere Bearbeitung vornehmen können und beachten Sie bitte, dass Sie Ihre kompletten Kontaktdaten angeben.
Kinzigtal-Immobilien bietet Ihren Kunden-/Interessenten einer der realistischsten und spannesten Erfahrung Ihr neues Zuhause in 3D zu besichtigen. 7 Tage die Woche – 24 Stunden offenes Haus und das bequem von überall. Auch als VR (Virtual Reality) zu erleben, als wären Sie selbst vor Ort.
Wir freuen uns auf Sie!
Für weitere Fragen und Informationen stehen wir Ihnen gerne zur Verfügung.
Ihre Kinzigtal-Maklergesellschaft mbH
Energieausweis
A+
< 30
A
30 – 50
B
50 – 75
C
75 – 100
D
100 – 130
E
130 – 160
F
160 – 200
G
200 – 250
H
> 250
- Baujahr lt. Energieausweis (Gebäude nicht Anlagentechnik!)
- 1998
- Endenergieverbrauch
- 116,1 kWh/(m²a)
- Energieausweis
- Verbrauchsausweis
- Energieausweis gültig bis
- 08.04.2029
- Energieeffizienzklasse
- D
- wesentlicher Energieträger
- Öl
Ihr Ansprechpartner
Herr Marcel Neidert
Kinzigtal – Makler GmbH
Schwedenring 23a
63628 Bad Soden-Salmünster


















































